ARAMA

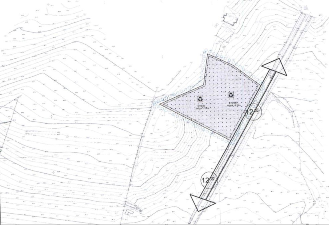
MEHMET AKİF MAHALLESİ 266 ADA 29 PARSEL PLAN TADİL...

Geri
MEHMET AKİF MAHALLESİ 266 ADA 29 PARSEL PLAN TADİLATI

MEHMET AKİF MAHALLESİ 266 ADA 29 PARSEL PLAN TADİLATI

24 Eylül 2025
Kırklareli ili Vize Belediyesi'ne ait kurumsal web sitesi. Vize Belediyesi'nden güncel haberler, projelerimiz, hizmetlerimiz ve e-belediye işlemleri